Ricerca annunci per codice

Voglia Di Casa
Lasciati trasportare dalla nostra esperienza

Rovereto

( Cod.114 )

BILOCALE

€ 180,000.00

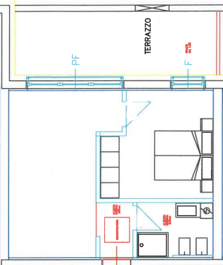
ULTIMO BILOCALE PIANO ALTO DISPONIBILE IN CANTIERE! In cantiere in fase di costruzione con possibilità di personalizzazione interna proponiamo appartamento al terzo piano con ampia terrazza con vista aperta composto da ingresso, bagno, soggiorno con angolo cottura, camera matrimoniale. Interrato con posti auto coperti singoli/doppi e ampie cantine da 10/15 mq Classe a+, riscaldamento/raffrescamento a pavimento, deumificatore, infissi triplo vetro, tapparelle motorizzate, finiture a scelta dell'acquirente, pannelli fotovoltaici...

Caratteristiche immobile

  • Contratto vendita
  • Categoria APPARTAMENTI
  • Superficie 50 mq
  • Classe Energ. N/D
  • Indirizzo Via ai Fiori, Rovereto
  • Box auto NO
  • Terrazzo / balcone SI
  • Bagni 1
  • Tipologia BILOCALE
  • Anno di costruzione 2025
  • Cantina NO
  • Ascensore SI
  • Riscaldamento AUTONOMO
  • Giardino NO
  • Arredamento NO

Richiedi maggiori informazioni su questo immobile

Attenzione! Si è verificato un problema!

Grazie! Richiesta inviata con successo!